お問い合わせ

仮設構造計算

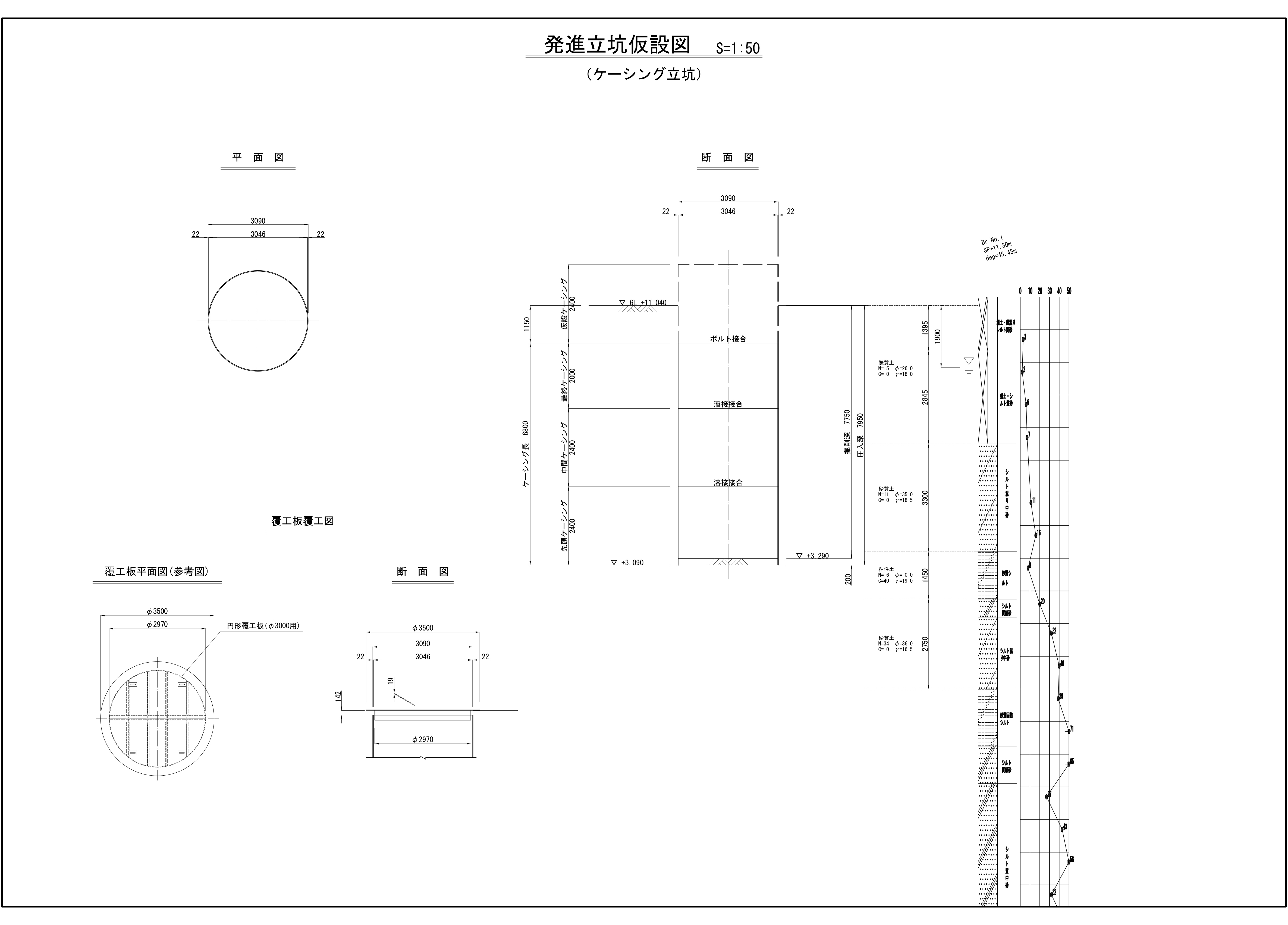
仮設構造計算 成果品具体例

※クリックで拡大します(別窓表示)※


  • 仮設構造物設計 成果品 No.1
  • 仮設構造物設計 成果品 No.2
  • 仮設構造物設計 成果品 No.3
  1. RC構造物設計
  2. 配筋図作成
  3. 仮設構造物設計
  4. 特殊解析
  5. シールド工補助
  6. 推進工設計